The Space


This flexible and energy-efficient design responds to a brief for a simple, cost-effective secondary dwelling with the potential to adapt as needed. The building has been carefully planned to support multiple floor plan options and uses while meeting high standards for thermal comfort and sustainability. This mighty little project is aiming for Passivhaus certification.


A clean, compact form supports efficient performance and affordable construction. The design avoids south-facing windows and features a north-facing covered porch that extends the living space. The pitched roof is oriented north to support photovoltaic panels, while rainwater is harvested for reuse.


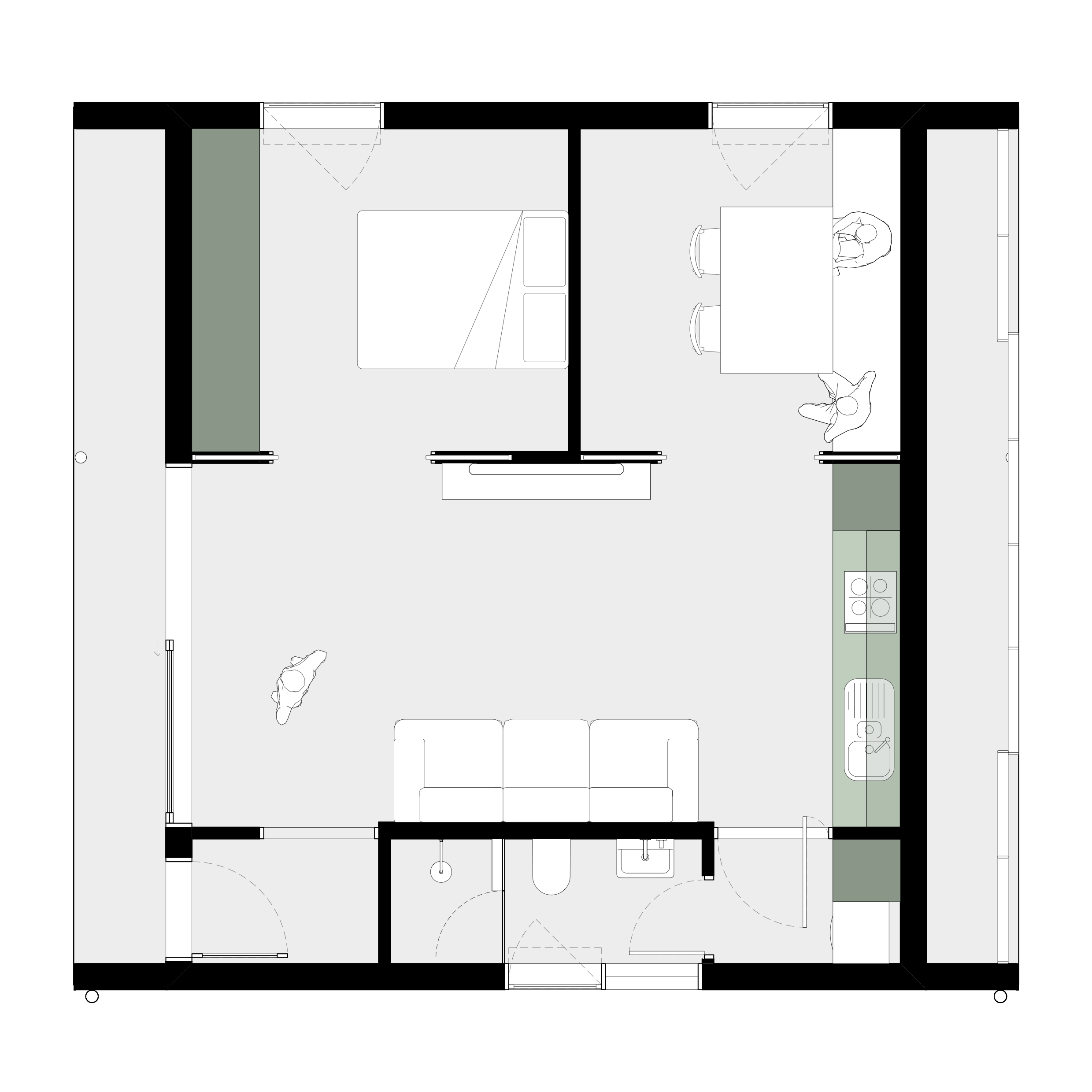
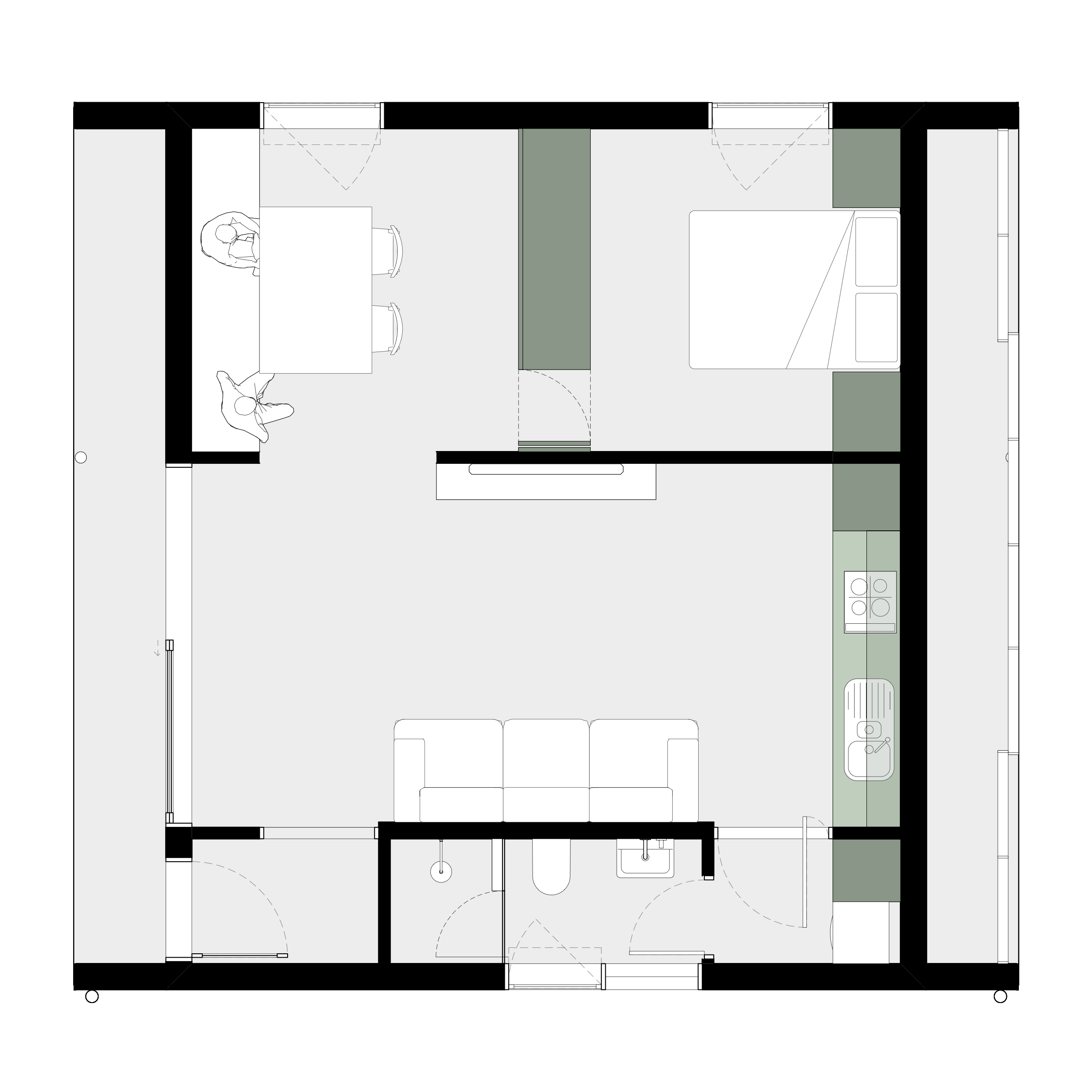
Internally, a southern full-length joinery wall integrates the kitchen, laundry, and a fold-down bed with robe, keeping the open-plan space highly functional and adaptable.


The space has been designed to accommodate:

  1. A home studio or office 
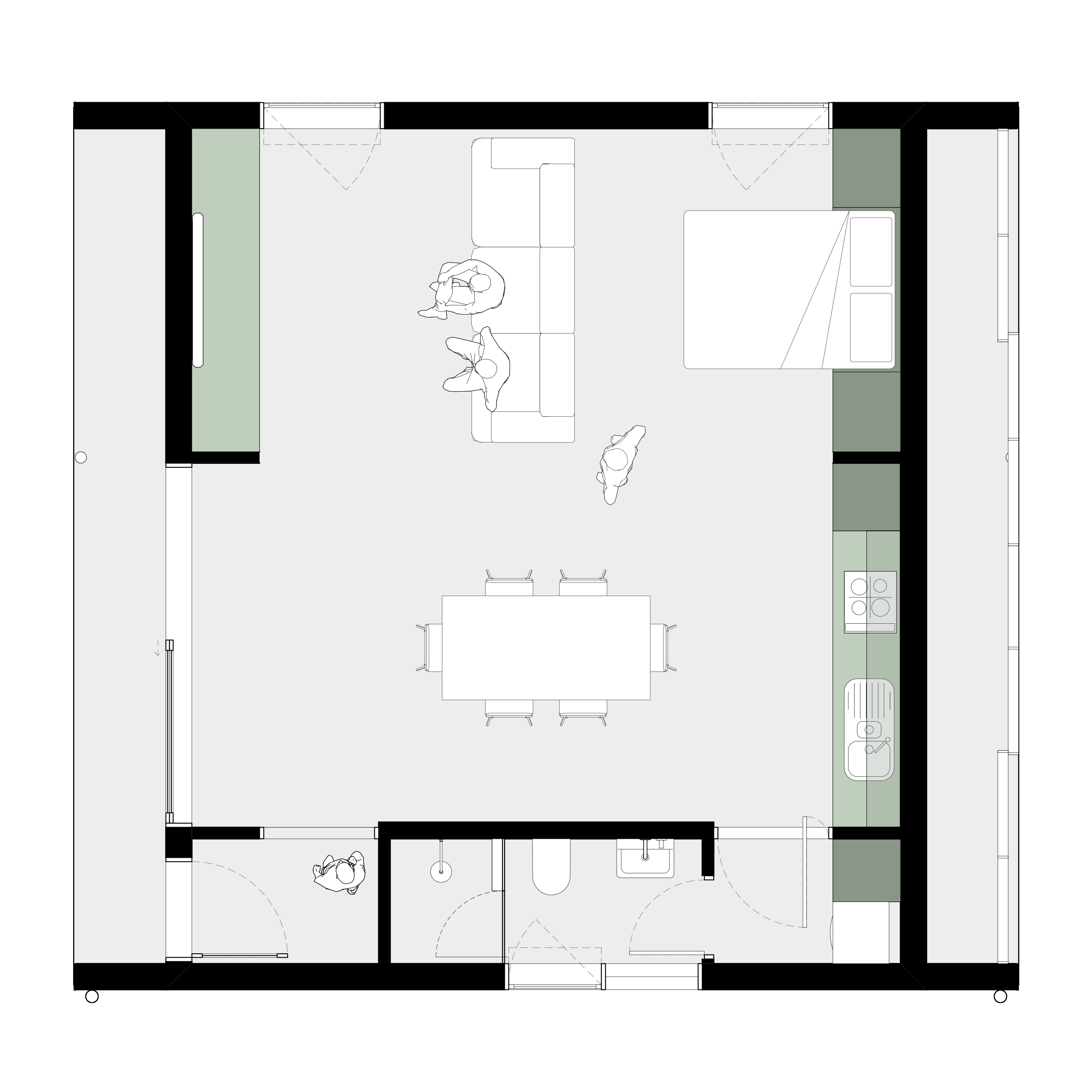
  2. Airbnb open plan
  3. Two queen bedroom home
  4. One small & one larger bedroom
  5. One bed entertainer
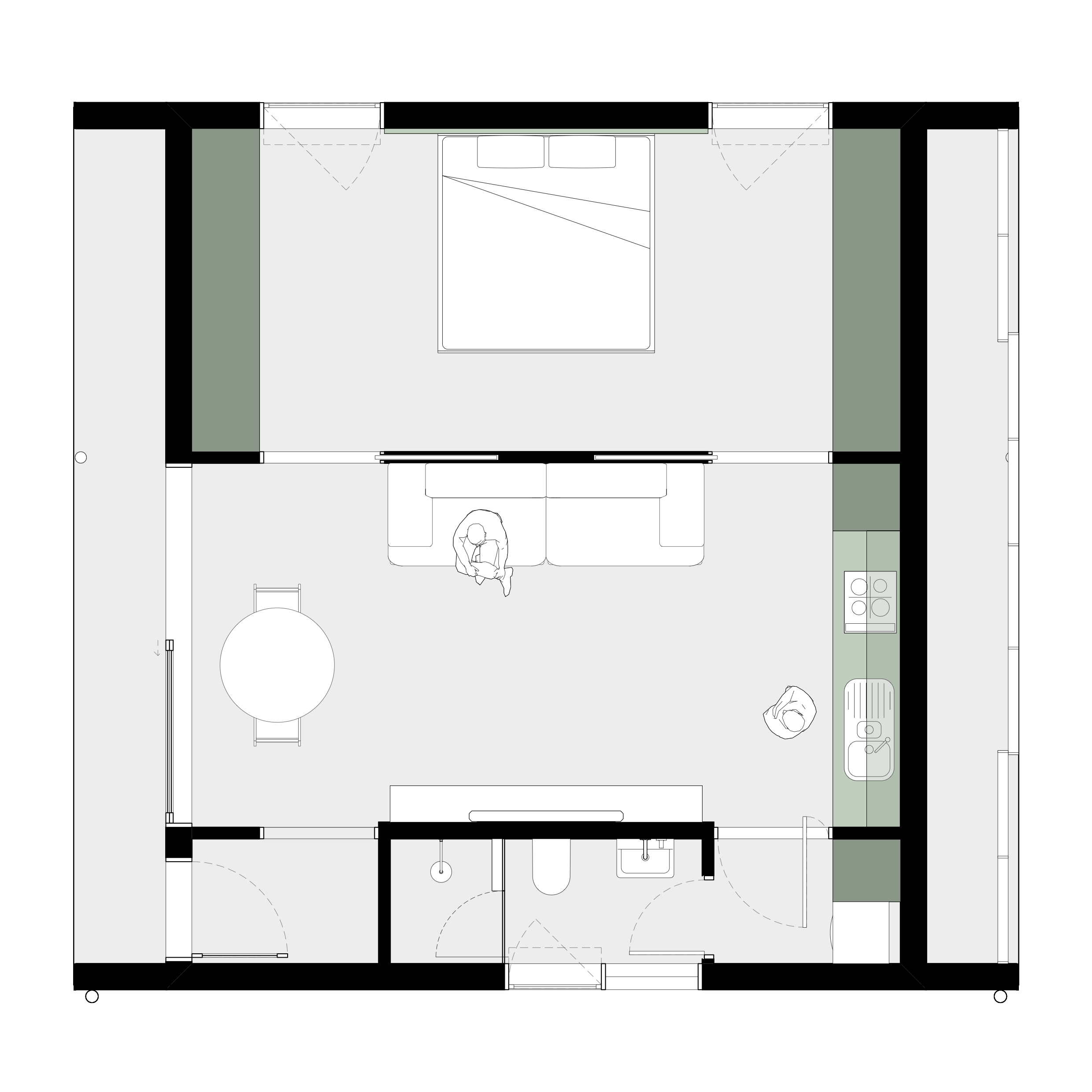
  6. One bed with separate dining
  7. One hidden bedroom design
  8. One king bedroom luxury floor plan
  9. Open plan king bed to big views
  10. Educational Space
  11. Yoga and wellness Space

This project reflects our approach to creating beautiful, efficient spaces that work hard and feel good to be in, now and into the future.